Die neue Massivholzküche im Jahr 2025
Beispielküchen aus ganz Deutschland zur Inspiration
Auch 2025 wird unsere Massivholzküche ständig weiterentwickelt: jede ist ein Unikat, in das die Ideen unserer Kunden und unsere eigenen einfließen und das in all den Holzarten, die die Hersbrucker Alb zu bieten hat.
Kleine Küche ganz groß
Auch diese 9,5 m²-Massivholzküche macht den Kunden richtig viel Freude

Ein Schlückchen Sekt zur Begrüßung
Es kommt nicht auf die Größe der neuen Küche an, sondern auf die Planung derselben. Diese Küche hat nichtmal 10 Quadratmeter, aber die Kochinsel ist seit dem ersten Tag das neue Zentrum des Hauses. Zugegeben ist sie mit 180 cm Länge nicht riesig, aber man kann daran zusammensitzen, -kochen, und -leben. Mit unserer Praktikantin Florentine kosteten wir beim Fototermin köstliche Pimentinos vom Tepan Yaki und haben dieses schöne Erlebnis im Video festgehalten.
Video Küche Ziegler

Die Keramikplatte über Eck wurde liebevoll zusammengefügt, es sieht aus, als wenn sie zusammengehören würden

Die Keramikspüle von Systemceram ist unkaputtbar, überzeugen Sie sich in unserer Austellung

Die Küche ist nicht groß, trotzdem kann man dort wunderbar gemeinsam kochen, sitzen und leben

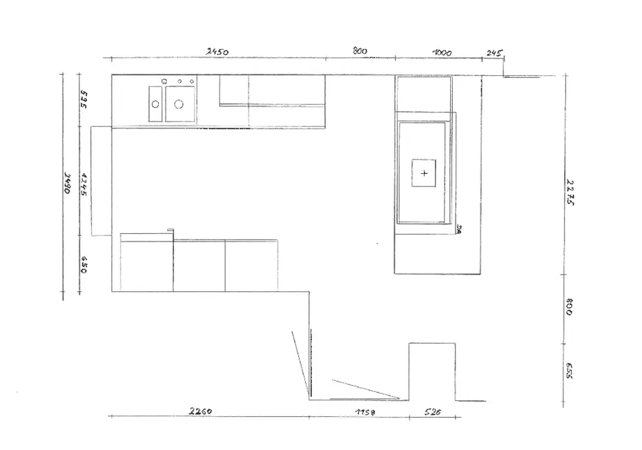
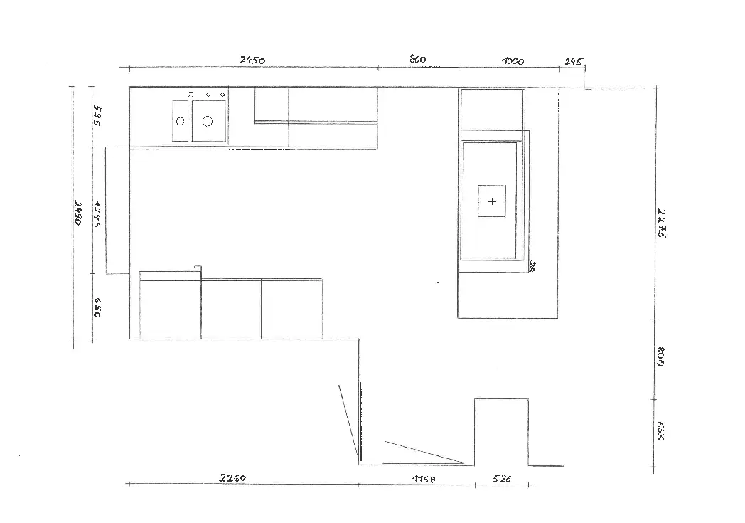
Links oben sehen Sie den Platzverlust durch den Schacht
Dass die Küche wirklich nicht so groß ist, wie es das Weitwinkelobjektiv glauben macht, sieht man an diesen Maßen, wobei man von der Breite noch den Schacht abziehen muss, der links von der Spüle die Küche schwer belastet.

Auch in den Nürnberger Nachrichten wurde über diese Küche berichtet
Und das schrieben unsere Kunden Barbara und Norbert

Das erste Skribble für das L mit Spülenzeile

Der Entwurf der Kochinsel mit Bank
von Barbara und Norbert
"Kitchen Possible – alles ist möglich
Noch im Vorjahr waren nach vollen 8 Monaten alle Träume für eine neue Küche geplatzt.
Eine neue Küchenlandschaft für unser Reihenhaus hätte es werden sollen. Doch über die reine
Planungsphase waren wir in dieser langen Zeit nicht hinausgelangt. Wir hatten das Projekt
schließlich stoppen müssen und waren daraufhin maßlos enttäuscht.
Wenige Monate später fassten wir uns ein Herz und wagten einen völlig neuen Anlauf.
„Heute schauen wir uns mal 'Die Möbelmacher' an“. Wir fuhren ohne große Erwartungen nach
Unterkrumbach. Dort hatten wir einen faszinierenden Tag. Frau Brunner stellte uns herwig Danzer vor und dieser führte uns zunächst durch die Schreinerei.
Dabei erklärte uns der Chef der 'Möbelmacher' den gesamten Ablauf des nachhaltigen Küchenbaus.
Die Frage, wie lange denn die Planung für so eine einzigartige Küche dauern würde, interessierte
uns daraufhin natürlich sehr. Die Antwort verblüffte uns. In nicht mehr als 2 Stunden sollte der grobe Plan samt Angebot fertig sein. Wir waren sprachlos. Doch nicht lange.
Beim Kochen und Plaudern, Essen und Trinken entstand schrittweise unsere neue Küche –
handgezeichnet von herwig Danzer. Dieser erste Besuch war doch erst Mitte März. Und schon wenige Monate später war unsere neue Küche fertig eingebaut. Nun sind wir glücklich und sehr, sehr dankbar. Zusammenfassend können wir das Fazit ziehen: Neue 'Kitchen Possible' - oder na also, geht doch.
Es war wichtig gewesen, nach der vorherigen Enttäuschung einen Neuanfang zu wagen.
Der erste Schritt war dabei der Wichtigste gewesen. Der Rest hat sich wunderbar gefügt.
Auch für einen Pilger des Jakobswegs in Spanien durfte diese Erkenntnis reifen.
Etwas für Unerschrockene. Ein großes Vorhaben, eine lange Distanz, ein gewagter Plan, der aber
auf Erfahrung aufbauen kann. Es wird sich dann alles fügen. Es darf werden ...
Zwischen der ersten Zeichnung von herwig Danzer und der fertigen Küche lagen fünf kurze Monate
für die Möbelmacher – und für den Pilger 900 km durch Spanien. Doch danach, Mitte August, war die Strecke für den Pilger bewältigt und unsere Küchenlandschaft samt neuer Kochinsel und Sitzbank auf 10 qm eingebaut. Wir nennen das unser kleines Wunder.
Welch außergewöhnliche Erfahrung, an die wir jedes Mal denken, wenn wir in unsere
wunderschöne und zugleich hochfunktionale Küche der 'Möbelmacher' treten dürfen."
Die neue Heimat der Eschen-Ausstellungsküche

Die neue eigene Küche in Esche noch bei uns in der Ausstellung

So fotografierten wir die Eschenküche nach der Montage im Jahr 2021
An diesem Beispiel sieht man sehr gut, wie wandlungsfähig unsere Küchen sind. Denn sie sieht ganz anders aus, als in unserer Ausstellung, ist aber trotzdem die perfekte Lösung für das Haus der Eltern von Simone, in dem sich beiden gerade einrichten.

Der Grundriss des Reihenhauses, in den wir unsere Ausstellungküche zweizeilig mit freigestellter Kochinsel hineingeplant haben.
Das Making of vom Fototermin (3 min)

Die neue Garderobe im Elternhaus im Jahr 1991

Die große ist heute Ärztin, die kleine ist unsere Tochter Laura
Übrigens hat die heutige Kundin schon als Kind in der Garderobe ihrer Eltern zusammen mit ihrem kleinen Bruder und unserer Tochter Laura gemodelt. Bald ziehen sie ins Elternhaus und machen sich´s dort schön.
24 Jahre alte Küche im regionalen Musterhaus in Unterkrumbach
Den Möbeln sieht man den Alterunterschied nicht an, den Menschen ...

Buchenküche mit Edelstahlfronten im Jahr 2000 in unserer Ausstellung

Buchenküche mit Edelstahlfronten im Jahr 2024 im regionalen Musterhaus
Diese Küche hatte ihren ersten Auftritt in unserer Ausstellung im Jahr 2000 und danach noch zweimal auf der Consumenta, bis sie Ostern 2002 im regionalen Musterhaus erstmals zum Einsatz kam.
Das Foto aus dem Jahr 2000 ist dem von 2024 auf der rechten Seite recht ähnlich, nur kam in diesen Jahren noch ein Mensch dazu, zu dessen Kochkursen für die französische Küche im Jahr 2035 wir Sie schon heute einladen.
Das Nachölen unserer Küchen

Horst Hager hat die Küche im Mai 2024 nachgeölt und seitdem ist an der Originalarbeitsplatte der Kochinsel keine Gebrauchsspur mehr zu sehen
Oberflächlich betrachtet sind unsere ausschließlich mit edlem Naturharzöl veredelten Küchen und Möbel „nur geölt“. Livos war 1974 nicht nur der erste Naturfarbenhersteller überhaupt, sondern auch der, der die Volldeklaration aller Inhaltsstoffe einführte. Übrigens bestehen die meisten „geölten“ Oberflächen anderer Hersteller heutzutage nicht aus Naturmaterialien, sondern aus Erdölderivaten.
Wenn Sie beobachten, welcher Aufwand in diese ein Leben lang nachpflegbaren Oberflächen gesteckt wird, können Sie nachvollziehen, dass die Beschreibung „nur geölt“ dem nicht gerecht wird.
Seit über 30 Jahren ist Horst Hager für unsere Oberflächen zuständig und wer unsere gerade nachgeölte Küche und den Esstisch im regionalen Musterhaus kritisch beäugt, wird feststellen, dass er nix sieht. Keine Kratzer oder Gebrauchsspuren, überzeugen Sie sich bitte selbst. Gerne können wir anhand unserer Pläne abschätzen, wie viel ein Nachölen bei Ihnen ungefähr kosten würde.
Nürnberger Küche mit Insel ohne Kochfeld
Auch so etwas kann man machen: Eine Insel mit Bank und viel Platz zum gemütlichen Sitzen und effektiven Arbeiten, aber das Kochen passiert an der Wand, nicht zuletzt, weil dort der Dunstabzug im Altbau deutlich leichter zu montieren ist, als an der Stuckdecke.

Die Beleuchtung an der Stuckdecke im Altbau zu montieren, war gar nicht so einfach - mit dem Dunstabzug hätte es ohne Generalsanierung wohl nicht geklappt, deswegen hängt der an der Wand
Große Küche in Berlin
Eine ganz besondere Küche werden wir bald nach Berlin liefern, erstmal hier nur die Zeichnungen, die Fotos liefern wir dann nach.
Ganze besondere Massivholzküche in Esche

Zweizeilige Küche aus heimischer Esche mit einer Spülenarbeitsplatte aus Edelstahl und einer Arbeitsplatte gegenüber aus Granit aus der alten Küche

Der Grund für die neue Küche war ein kaputter Backofen und wenn man schon mal dabei ist ...
Die Kundin aus Lindau am Bodensee hat schon einen Schreibtisch von uns, jetzt hat sie mit ihrem Partner und uns eine ganz besondere Küche verwirklicht. Beide sind studierte Maschinenbauer, er in der Industrie, sie an der Berufsschule (wo auch unser Schreibtisch steht) und das der Küche auch anzusehen.
Die Kunden haben nicht nur unendlich viele Ideen in Ihre Küche eingebracht, sie haben sie auch selbst formuliert und fotografiert.
Miniküche in Kirschbaum im Industrial Design für Oltimerlounge

Endlich angekommen in der Porschelounge – Massivholzküche in Kirschbaum mit Edelstahl

Wenn die Kühlschränke erstmal gefüllt sind
Mit viel Edelstahl und warmen Kirschbaum entsteht ein ganz besonderer Industrial Style. Die Basis dafür war ein Küchencontainer, den wir im Jahr 2008 für eine neue Miele Geräteserie bauten, jetzt bekam er noch eine Spüle spendiert und einen Müllsammler hinter die neue Edelstahltür.
Das Video in der Porschelounge
Video Oldtimerlounge

Die 5 mm dicke Edelstahlplatte wurde flächenbündig in der Holzplatte eingefräst, das Kochfeld aufgesetzt

An den Container wurde noch eine Spülmaschine und ein Hochschrank für den Wein- und Normalkühlschrank angehängt, man braucht ja was zum Trinken, wenn man Oldtimern huldigt

Man beachte die unregelmäßigen Fingerzinken und die eingeschweißte Spüle
Der vier Zentimeter dicke Korpus des Containers ist mit Fingerzinken (wie Schwalbenschwänze, nur gerade) verbunden, die normalerweise in regelmäßigen Abständen angeordnet werden. Wir fanden es aber lustiger, sie anders anzordnen und setzten dadurch kleine Gestaltungsakzente.

Die Küche war bei vielen ganz Aktionen im Einsatz, hier beim Schlossfest in Lauf 2008

Unser Massivholzküchen sind vor allem Profiwerkzeuge zum Arbeiten, schön sind sie zwar nur nebenbei, aber niemals zufällig
Über das Laufer Schlossfest 2008 haben wir auch im Nachhaltigkeitsblog (seit 2005) berichtet.
Dreizeilige Buchen-Massivholzküche in Waiblingen

Geschwungene Kochinsel mit Bank und durch das Fenster unterbrochene Spülenzeile
Eine dreizeilige Küche in Buche mit unterbrochener Spülenzeile durften wir nach Waiblingen liefern. Ausnahmsweise rahmen diesmal die beiden Hochschränke in der Nische den Edelstahlkühlschrank ein. Prinzipiell neigen wir zu Standgeräten, weil sie einfacher zu tauschen sind und leider nicht so lange halten, wie unsere Küchen. Andererseits gibt es in der Zwischenzeit auch eine neue Generation von Einbaukühlschränken, die größer und besser ausgestattet sind, als früher, also können wieder alle Möglichkeiten durchgespielt werden.
Unsere Aufgabe ist dabei immer die Vor- und Nachteile zu schildern und die Aufgabe der Kunden ist es, die Prioritäten zu setzen und die Entscheidungen (gerne schnell) zu fällen.

Die Kochinsel bietet Platz für viel Familie und Gäste und man kann von allen Seiten auch daran arbeiten, vor allem beim gemeinschaftlichen Brotbacken

Die große Teigknetmaschine hat auf dem frei stehenden Schubschrank Platz gefunden
Miniküche mit Koch-Viertelinsel
Auch auf 6,1 Quadratmetern hat man Platz für eine Koch-Insel.

Ein Foto aus dem Nürnberger Stadt-Archiv für die Oberschränke

245 cm mal 249 cm ist nicht riesig, trotzdem gemütlich
Zugegeben, die Insel ist nicht riesig, aber man kann in dieser Küche angenehm zu zweit kochen und sitzen. Und das ist für uns ein Symbol der Lebensqualität im Gegensatz zu den Küchen, in denen man nur an der Wand lang kochen kann. Für das Foto in den Oberschränken hat sich Michael im Archiv der Stadt Nürnberg ein Foto gekauft, das wir hinter die Glastüren drucken ließen. Um den Preis für diese minimalistische Variante im Rahmen zu halten, haben wir wieder lamellierte Buche aus industrieller Fertigung für die Korpusse verwendet, die Fronten sind aus dem Holz der Hersbrucker Alb von Moritz liebevoll mit rotkerniger Buche komponiert.

Die Kochinsel lädt zum Sitzen ein

Das Fenster dieser zweizeiligen Massivholzküche ist frei zugänglich
Übrigens hat die Kochinsel, die Platz zum Sitzen macht, dank der großen Tiefe genau 1,1 Quadratmeter Fläche, würde man die normale Arbeitsplatte bis an die Wand durchziehen, kämen auch 1,1 Quadratmeter raus. Also haben dank Koch-Inselbegabung keinen Platz hergeschenkt und trotzdem zwei Sitzmöglichkeiten geschaffen.
750 Jahre Kirchensittenbach – 33 Jahre Schlossküche
1992 haben wir unsere Küche im Tetzelschloss montiert

Eine Kochinsel und ganz indviduell angepasste Ahornmöbel im Tetzelschloss zu Kirchensittenbach
Kirchensittenbach feiert 750-jähriges Jubiläum, wir duften immerhin schon 1992 im Tetzelschloss die Küche für Familie von Volckamer montieren. Mit Ute Dannhäuser und dem verzauberten Frosch unserer Tochter Laura haben wir sie einst fotografiert. Das Kostüm nebst Goldkugel kam vom Gymnasium, das noch nicht nach Paul Pfinzing benannt war, mithilfe von Richard Siebenbürger, den Frosch haben wir bei unserer Tochter @laura_danzer ausgeliehen.

So sah der Entwurf der Schlossküche aus, gottseidank haben wir eine Farbkopie im Archiv gefunden

Ute hat alles gegeben, um dem Frosch zu gefallen
Die Arbeitsplatte ist aus Laborkeramik, es war eines der ersten in Deutschland ausgelieferten Induktionskochfelder von Atag und der Nostalgie-Backofen harmonierte mit der Sonderanfertigung der Dunstabzughaube, für deren Montage des Außenmotors sich Gunther Münzenberg vom Dach abseilte. Das mit dem Küssen und dem Verzaubern hat nicht geklappt, Laura war froh, als sie ihren Frosch wieder hatte.

Der Frosch war begeistert

Ein wunderschönes Baudenkmal: das Tetzelschloss in Kirchensittenbach

Eines der ersten Induktionskochfelder in Deutschland

Der farbige Entwurf ist irgendwie verloren gegangen ...

Ute Dannhäuser spielte das Burgfräulein

Die Dunstabzugshaube entstand in Einzelanfertigung nach unserem Entwurf in Sonderfarbe
Kleines Designdetail: Das Profil der Füße der Kochinsel und das des Vitrinenumbaus des Kamins hat exakt die Form, der halbierten Kochinsel in klein.
Lassen Sie sich von unseren 700 Küchenfotos in unserer Datenbank inspirieren!
In aller Ruhe in über 700 Traumküchen-Fotos schwelgen? Schicken Sie uns eine Mail, dann senden wir Ihnen kostenlos den Zugang zu unserer Bilddatenbank.
Alle Fotos wurden bei unseren Kunden aufgenommen. Ausnahmen sind nur die aus unserer Ausstellung oder die von Veranstaltungen.
Einfach hier klicken: hd@die-moebelmacher.de.
++++++++++++++++++++++++++++++++++++++++
Finden Sie Ihre Lieblingsküche in unserer Holzküchen-Suchmaschine:
Geben Sie einfach Ihre Lieblingsholzart, die Küchenform, die Art der Fronten, das Arbeitsplattenmaterial oder Wunschgeräte an, und es werden alle Küchen angezeigt, die diese Kriterien erfüllen.
Das ist vor allem nach einem ersten chronologischen Durchsehen der Küchen aus diesem Jahr bis zurück ins Jahr 2001 hilfreich, weil Sie dann blitzschnell zu Ihren Wunschkriterien finden.
Das ist der Link zur Massivholzküchen-Suchmaschine.
Schaltbares Glas im Oberschrank – Innovation in der Glasmöbelfront
Durchblick im Schrank, Guter Kaffee, Küchenschnäppchen

Die schaltbare Glasfront (hier mit eingeschaltetem Licht) eröffnet ganz neue Einrichtungsideen
Stellen Sie sich vor: Ihr Oberschrank hat einen dezenten und transparenten Kirschen-Digitaldruck als Deko. Sie können darin das Licht einschalten (großes Bild), aber Sie können mit der Fernbedienung zusätzlich die Glasfront auch auf Durchsicht umschalten (Bild 2).
In unserem Beispiel sehen Sie dann die köstlichen Kaffeesorten von Conox, die unsere rotarische Freundin Diana Laden in Sulzbach-Rosenberg selbst röstet. Weil wir so große Fans davon sind, können sie diesen Kaffee und Espressomaschinen bei uns kaufen, aber zurück zur Oberschrankfront (geöffnet in Bild 3):
Wenn die Glasfront auf durchsichtig geschaltet ist, wissen auch fremde Köchinnen oder Gäste, wo in Ihrer Küche die Weingläser oder Espressotassen stehen, Sie könnten aber auch Ihre Sammlung an wertvollen Single Malt Whiskys transparent machen, die ja nur ausgesuchte Besucher sehen sollen.
Wir haben vielleicht die Lösung für ein Problem, das wir noch suchen, aber wir möchten Ihnen auch unseren Kirschbaumcontainer vielleicht als überdachte Schnäppchen-Outdoorküche ans Herz legen. Wir würden ihn gerne durch neue Ausstellungsmöbel und Our Greenery ersetzen, aber er ist einfach zu wertvoll zum Aussortieren. Alle Infos sind auf Übriges zu finden.

Ohne Licht sieht der Schrank so aus und lässt sich mit der Fernbedienung auf durchsichtig stellen

Mit nur ganz wenig Strom wird die Glasfront durchsichtig

Im geöffneten Schrank sieht man köstlichen Kaffee und ein wenig Technik
Alleinstellungsmerkmale und Besonderheiten unserer Küchen und Möbel
Was unsere Küchen und Möbel besonders macht: das Massivholz aus der Region, durchdachtes Design in Einzelanfertigung, alles aus einer Hand – individuell, nachhaltig und mit viel Erfahrung.
Auf dieser neuen Seite haben wir alle Besonderheiten und Alleinstellungsmerkmale für Sie in drei Kapiteln zusammengefasst:
Küchenlinks
Noch viel mehr Infos über unsre nachhaltigen Massivholzküchen aus Unterkrumbach
Unsere Küchensonderseiten:
- Alleinstellungsmerkmale der Möbelmacherküchen
- Massivholzküchen im Jahr 2025
- Massivholzküchen im Jahr 2024
- Massivholzküchen im Jahr 2023
- Massivholzküchen im Jahr 2022
- Massivholzküchen im Jahr 2021
- Massivholzküchen im Jahr 2020
- Die Kochinseln der Möbelmacher
- Die barrierefreie Küche für Rollstuhlfahrer
- Die höhenverstellbare Küche
- Die Möbelmacherküchen im Feinschmecker
- Die Vorteile von Massivholzmöbeln in der Küche
Küchen im Nachhaltigkeitsblog:
Alle Küchenartikel in der Kategorie „Die Küche zum Kochen“
- Alle Artikel über den Druckdampfgarer
- Alle Artikel über die Technik des Vakuumgarens (Sous Vide)
- Kochrezepte von Diana Burkel in der Kocheinrichtung
Geräte
- Tepan Yaki
- Arbeitsplatten und Spülen aus Laborkeramik von Systemceram
- Vakuumiergeräte und Thermalisierer von Komet
Küchenvideos in der Youtube Playlist
- Massivholzküchenvideos über Geräte und Küchen der MöbelmacherVideos vom Kochen in Möbelmacherküchen
- Die Koch-Einrichtung (Kochserie mit Diana Burkel vom Würzhaus)















































